КРАТКО
 
РАЗШИРЕНО
       
Оферта №16029, Цена: 397121 EUR
Тристаен, София, Бояна,
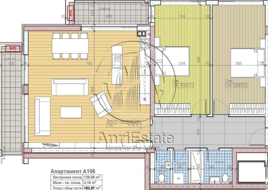
154 кв.м, ет. 2/5, Тухла
 

Агенция АНРИ продава тристаен апартамент в нова тухлена сграда с АКТ 14. Луксозни общи части, асансьор. Доказан строител. Висок клас на довършителни работи. МЕСТОПОЛОЖЕНИЕ: Намира се на тиха улица близо до бул.Цар Борис 3 и бул.Никола Петков, спирки на градския транспорт, осигуряващ бърз достъп до центъра на София. РАЗПРЕДЕЛЕНИЕ: 129,59 кв.м. застр...

Брокер: Брокер Телефон: Мобилен: 0885980205